2D Plan Information
Β
Definitionβ
A 2D Plan is a generated jpg image of a scene with the following characteristics:
- It can be a top or a front view
- It is an orthographic projection of the scene (no perspective)
- It shows only the outline of the objects in black on a white background, and no texture or material
- It displays information like the dimensions of the cabinets, the numbering, and symbols
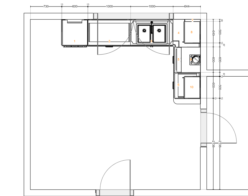
The dimensions and numbering are displayed only for the kitchen furniture. it includes the following types :
- The cabinets with the closed tag
BaseCabinets,CornerCabinets,HalfHeightCabinets,HighCabinets,WallCabinets,CoverPanels - The equipment with the closed tag
Cooktops,Dishwashers,Dryers,Hoods,OvenCabinets,Refrigerators,UnderSinkCabinets,Washers,WineCellars - The fillers with the closed tag
FreeStandingFillerStrips,FillerStripAngle,FillerStrips
The generation of the 2D Plans can be requested with an iFrame message
β‘οΈ Refer to Iframe Message documentation π
β‘οΈ Refer to Print documentation π
Versionβ
There are currently 2 versions of the 2D plans.
On version 1, the scene is directly rendered, depending on the project geometry. The result is very accurate, but may contain too many details, which results in a difficult reading of the plan :

On version 2, a simplified version of the cabinets is computed, which is more readable.
The top view shows the opening side of the cabinets doors, and the equipements hava a symbol, and reference, to help identifying them

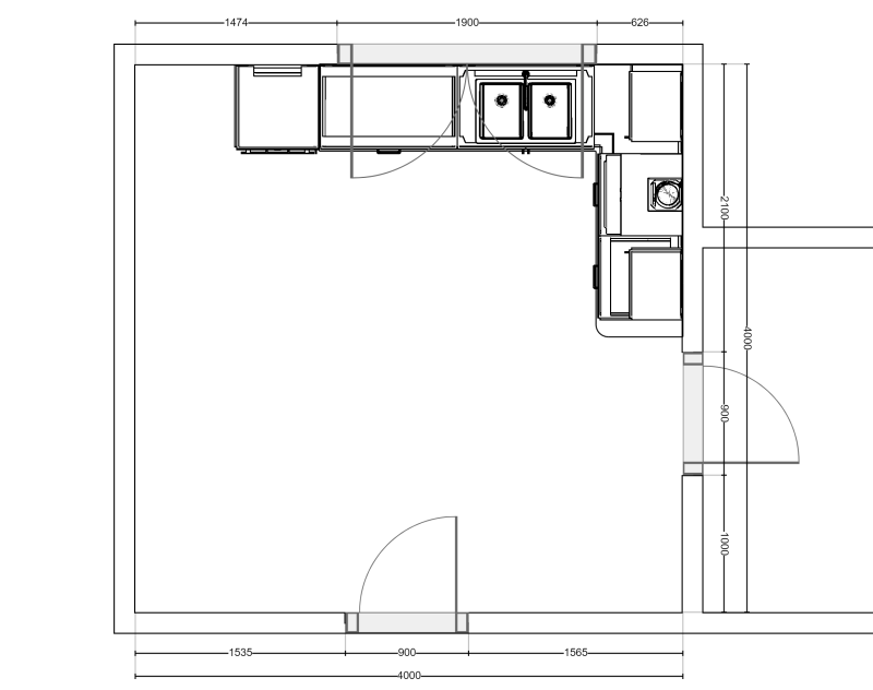
Types of 2D Plansβ
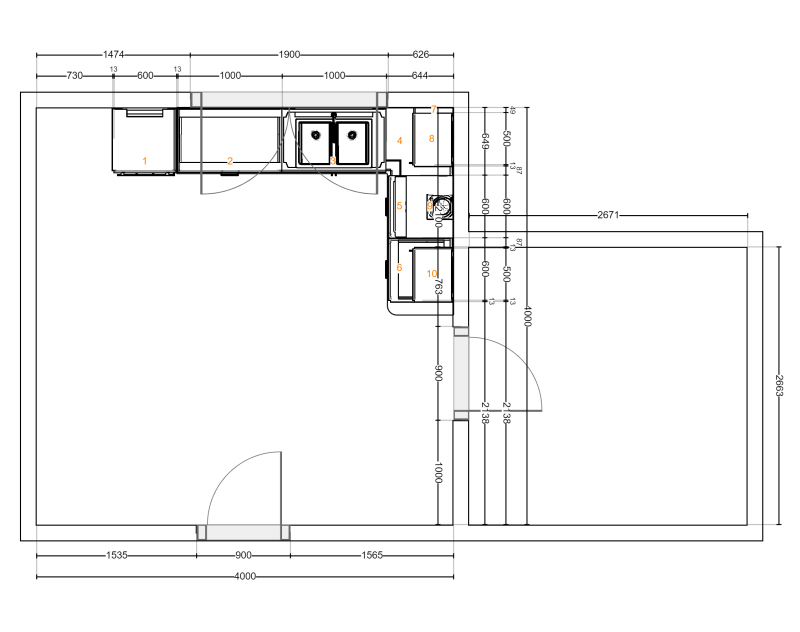
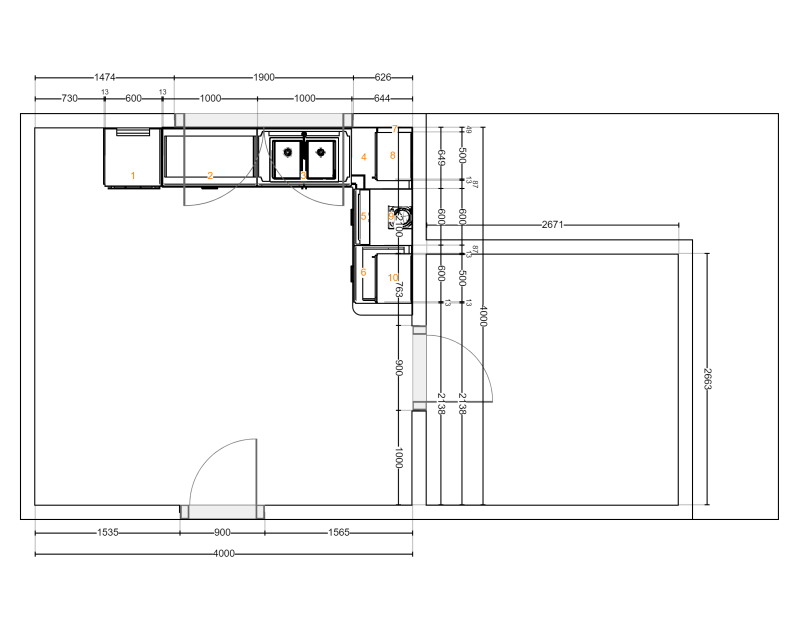
all the following examples are generated from this project :

There are currently 7 types of 2D Plans, defined by the typePlan parameter :
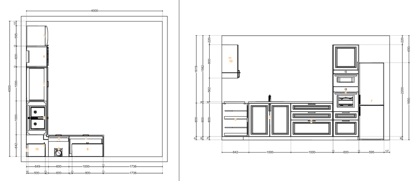
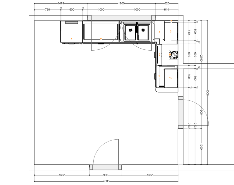
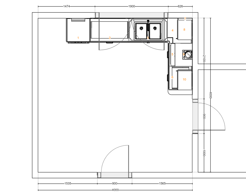
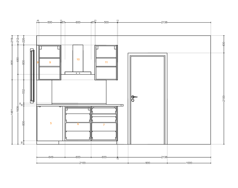
Topβ
Generates top plans :

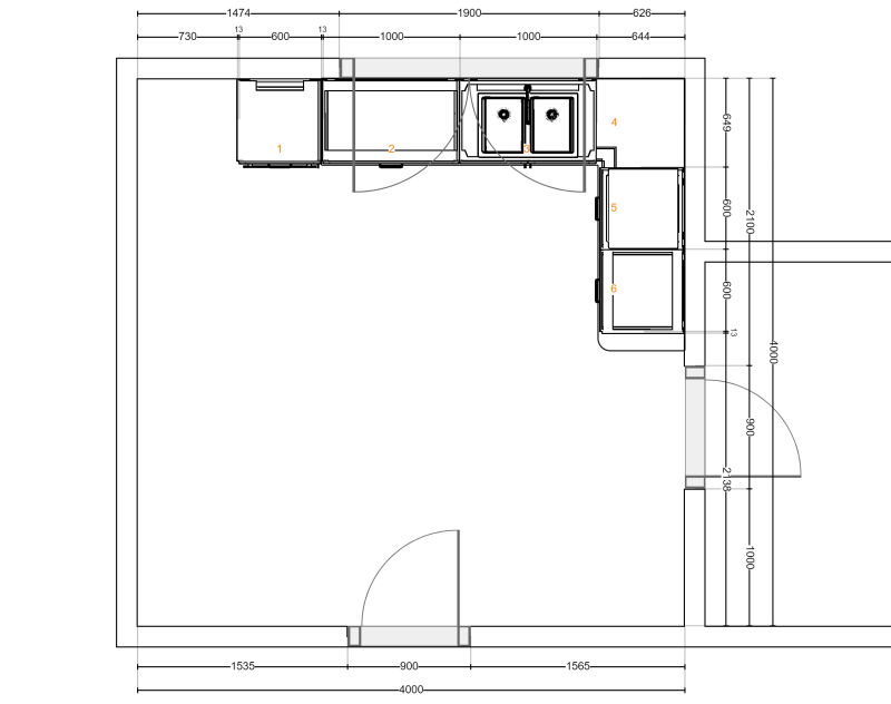
TopGroundβ
Generates top plans only of the floor furniture (the cabinets with an altitude lower than 300mm) :

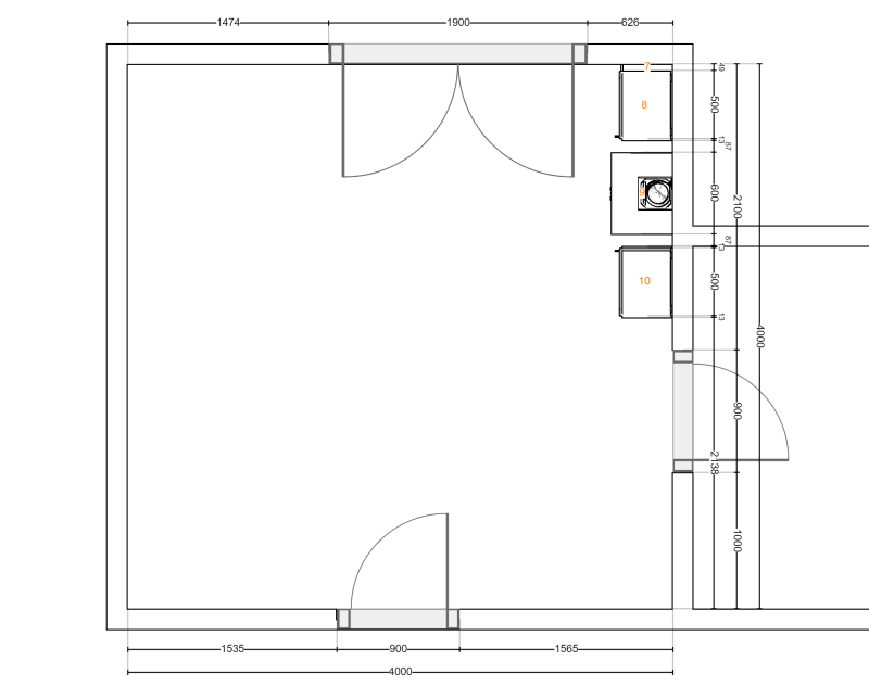
TopWallβ
Generates top plans only of the wall furniture (the cabinets with an altitude greater than 300mm) :

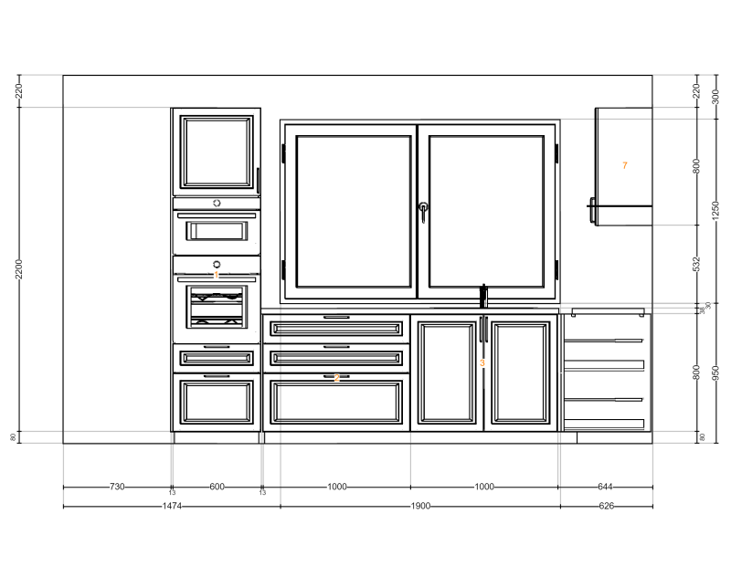
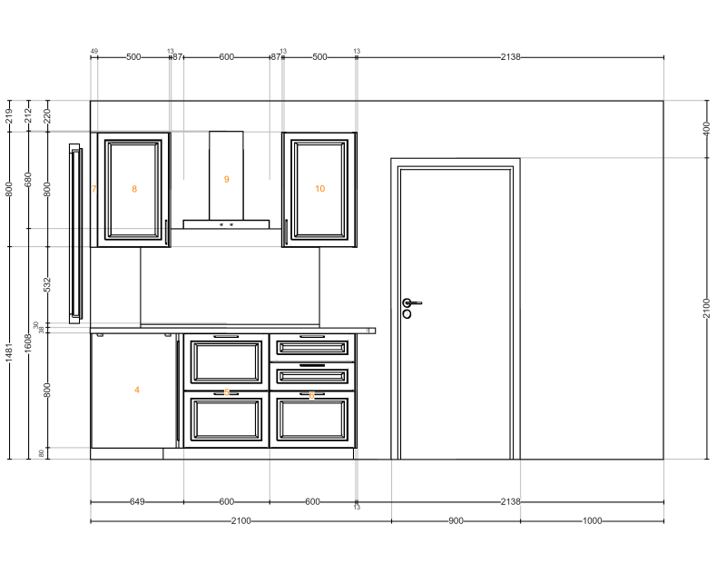
Faceβ
Generates a face plan in front of each group of aligned cabinets (the list of kitchen cabinet tags is described on top of this page) :


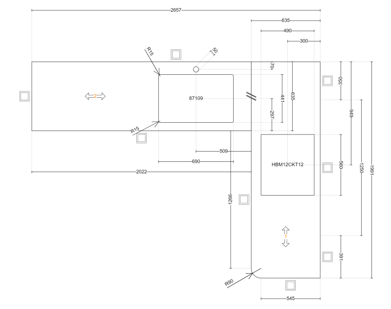
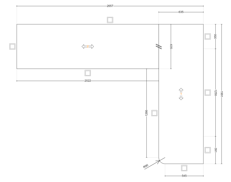
Worktopβ
Generates a plan of each worktop of the project :

WallPanelβ
Generates a plan of each wall panel of the project :

WallEdgeStripβ
Generates a plan of each wall edge strip of the project :

Other Parametersβ
tagsToShowβ
Optional Array of product tags we want to show in the 2D Plans. If this parameter is not set, or contains an empty array, we show all products
β‘οΈ this parameter is not compatible with tagsToHide
tagsToHideβ
Optional Array of product tags we want to hide in the 2D Plans. If this parameter is not set, the default hidden products are the following:
Accessories, FloorLamps, KitchenAccessories, PlantsAndFlowers, Rugs, Shelves, SuspendedLamps, TableLamps, Tableware, TrashCans, WallShelves
β‘οΈ this parameter is not compatible with tagsToShow
tagsToMeasureβ
Optional Array of product tags that must have a measure in the 2D Plans. If this parameter is not set, the default measured products are the following:
BaseCabinets, BathroomVanityUnits, Bathtubs, Cooktops, CornerCabinets, CoverPanels, Dishwashers, DoubleSinks, Dryers, FillerStripAngle, FillerStrips, FreeStandingFillerStrips, HalfHeightCabinets, HighCabinets, Hoods, OvenCabinets, Refrigerators, Showers, SingleSinks, Sinks, Toilets, UnderSinkCabinets, WallCabinets, Washers, WineCellars
showFurnitureDimensionβ
Activate/Deactivate the furniture dimensions.
Example of a 2D plan without the furniture dimensions

showDepthDimensionβ
Activate/Deactivate the furniture depth dimensions.
showFullIslandDimensionβ
If Activated, there are more positioning dimensions for the island.
β‘οΈ These dimensions appears only if the wall is perpendicular to the dimension.
If the parameter is "1" it shows all the possible dimensions.
If the parameter is "0", it only shows the shortest on each axis
Example of a 2D plan with and without the full island dimensions

showNumberingβ
Activate/Deactivate the cabinet numbers.
Example of a 2D plan without the cabinet numbers

showFurnitureβ
Activate/Deactivate the furniture.
Example of a 2D plan without the furniture

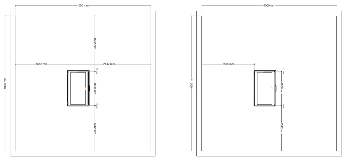
showWallDimensionβ
Activate/Deactivate the wall and bay dimensions.
Example of a 2D plan without the wall and bays dimensions

showCutoutsβ
Activate/Deactivate the cutouts (and its dimensions) in the worktop/wallpanel 2D plan.
Example of a worktop 2D plan without the cutouts

showFrontsβ
Activate/Deactivate the fronts and handles of the cabinets.
Example of a 2D plan (Face) without the fronts

roomsOnlyβ
Only for the top 2D plans. If the parameter is 0, a plan is generated for the whole level. If the parameter is 1, a plan is generated for each room that contains kitchen furniture
Example of a 2D plan of the whole level

showExteriorsβ
Activate/Deactivate the exteriors in the top plans.
Example of a 2D plan with the exteriors

resolβ
Defines the desired number of pixels per inch for the printed image
scaleβ
Defines the scale of the plan, regarding the real size of the cabinets, and taking into account the resol parameter
This parameter is ignored if the imageWidth and imageHeight parameters are specified
imageWidth and imageHeightβ
Defines the size of the image result in pixels. If these parameters are specified, the scale parameter is ignored.
roomNameβ
Defines the name of the room.